Attefallshus Vibostugan Njuta 20-4 19,6 m² Trähus
144 995 kr
Behöver du hjälp med ditt köp?Ring till våra produktrådgivare!

Njuta 20-4 19,6 m² Trähus
144 995 kr
Tillverkningsvara - Levereras normalt inom 6-8 veckor.
Specialtransport Fraktkostnad beräknas i varukorgen.

Vibo Njuta 20-4 är ett attefallshus från Vibostugan som levereras i monteringssats med färdiga väggmoduler och gavelspetsar. Råspont och underlagspapp till tak samt golvspånskivor till golv ingår.
Varumärke
VibostuganBeskrivning
Vibo Njuta 20-4 är ett attefallshus från Vibostugan som levereras i monteringssats med färdiga väggmoduler och gavelspetsar. Råspont och underlagspapp till tak samt golvspånskivor till golv ingår.
Ett attefallshus i gedigen konstruktion. Som tillval kan man t.ex. välja isoleringspaket, taksystem Plannja Trend eller shingel. De fyra fönstren från golv till tak ger ett ljust och luftigt intryck.
Vibostugan tillverkas i Ambjörnarp, strax utanför Tranemo, en bit utanför Borås i Västergötland. Allt virke kommer från de svenska skogarna.
Fakta
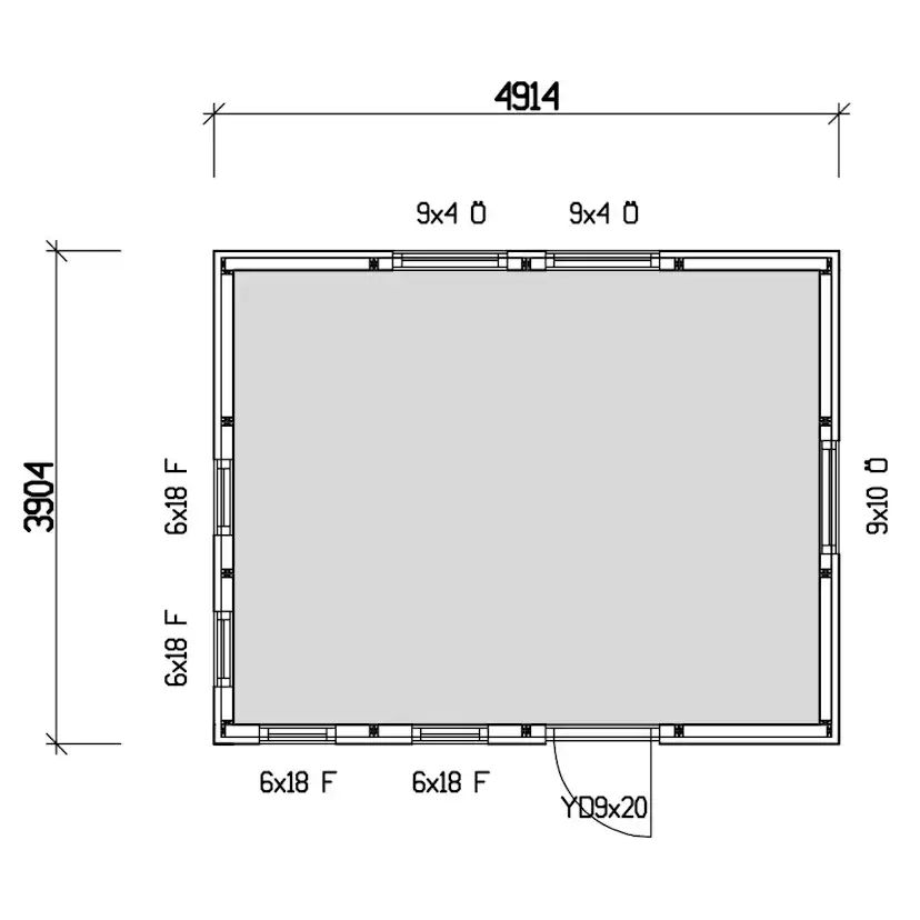
- Byggyta: 19,6 m²
- Takyta: 27,2 m²
- Taklängd: 5400 mm
- Takfallslängd: 2540 mm
- Taklutning: 25°
- Snözon: 3,5
- Totalhöjd: 3880 mm
- Högsta höjd invändigt: 2300 mm
- Lägsta höjd invändigt: 2300 mm
Detta ingår
- 1 st dörr 90x200 cm, glas, med trycke och lås
- 4 st fönster 60x180 cm, obehandlade, fasta
- 1 st fönster 90x100 cm, obehandlat, öppningsbart
- 2 st fönster 90x40 cm, obehandlade, öppningsbara
OBS! Produktbilden kan vara extrautrustad. Attefallshuset levereras obehandlat.
Detta är en skrymmande produkt som kräver specialtransport i form av en stor lastbil eller kranbil. Leverans sker fram till porten om du bor i lägenhetshus eller fram till tomtgräns om du bor i villa. Du som kund ansvarar för att flytta godset från tomtgräns.
Fördelar: Attefallshus Vibostugan Njuta 20-4 19,6 m² Trähus
- Gedigen konstruktion för året-runt-bruk
- Ljust och luftigt med fönster från golv till tak
- Levereras som monteringsfärdiga väggmoduler för enkel installation
Vibostugan tillverkas i Ambjörnarp, strax utanför Tranemo, en bit utanför Borås i Västergötland. Allt virke kommer från de svenska skogarna.
Fakta
- Byggyta: 19,6 m²
- Takyta: 27,2 m²
- Taklängd: 5400 mm
- Takfallslängd: 2540 mm
- Taklutning: 25°
- Snözon: 3,5
- Totalhöjd: 3880 mm
- Högsta höjd invändigt: 2300 mm
- Lägsta höjd invändigt: 2300 mm
Detta ingår
- 1 st dörr 90x200 cm, glas, med trycke och lås
- 4 st fönster 60x180 cm, obehandlade, fasta
- 1 st fönster 90x100 cm, obehandlat, öppningsbart
- 2 st fönster 90x40 cm, obehandlade, öppningsbara
OBS! Produktbilden kan vara extrautrustad. Attefallshuset levereras obehandlat.
Detta är en skrymmande produkt som kräver specialtransport i form av en stor lastbil eller kranbil. Leverans sker fram till porten om du bor i lägenhetshus eller fram till tomtgräns om du bor i villa. Du som kund ansvarar för att flytta godset från tomtgräns.
Fördelar: Attefallshus Vibostugan Njuta 20-4 19,6 m² Trähus
- Gedigen konstruktion för året-runt-bruk
- Ljust och luftigt med fönster från golv till tak
- Levereras som monteringsfärdiga väggmoduler för enkel installation
Dokument
Egenskaper
| Varumärke | Vibostugan |
| Art.Nr. | 19505 |
| Färg | Obehandlad |
| Area | 19,6 m2 |
| Utförande | Monteringsfärdiga väggmoduler |
| Glas | 2-glas |
| Material | Trä |
| Takdesign | Sadeltak |
| Säsong | Året Runt |
| Serie | Njuta |
| Typ | Attefallshus |
| Väggtjocklek | 95+22 mm |
| Höjd | 3880 mm |
| Längd | 4,914 mm |
| Loft | Nej |
| Max Snölast | 3,5 kg/m2 |
| Altan | Nej |
| Vikt | 2315 kg |
| Bredd | 3904 mm |
| EAN-nr | 7350105510816 |









